orus casinobodogruletaluckiabetanosportiumspin casinostakes3 reyes888lottolandcoolbet777 casinogana777betfairbwinyak casinoivy casinooddscheckerred casinonetbetwilliam hillvip casinorey casinomarathonbetdafabetsol casino1betwinlandbet777parimatch18bet888casinocampobetmostbetganabetrushbetbetcrisbetssonluckynovibetwinnerwinpotbetmasterbetmexicocancunplaycitystrenduspokerstarscoderecalientefun88bbrbet1win10betbetwaypin upspinbet7cslotpickwinspin betmr fortunew88pragmaticgamdomcrasherjojobetbetmexbcasinofoliattiwinner mxbets 10big bolabet masterinbet7slotslucky daym777mexplayluckydaysbet caliente1xplinko

Золотая капитель
work-Культурно-образовательный центр «Дом природы» на набережной им. Зодчего С.Е. Дудина в Ижевске
Культурно-образовательный центр «Дом природы» на набережной им. Зодчего С.Е. Дудина в Ижевске
Номер в каталоге
90
Участвовал в
Рейтинг 2023
Раздел
Архмолодежь
Номинация
Дипломный проект
Награды
  • silv
  • SPD
Город постройки
Ижевск

Описание

Численность населения Ижевска - 645 183 человек, что составляет 43% населения Республики. Горожанам требуются новые современные центры культуры и образования, позволяющие вместить большое количество посетителей. Ижевск обладает высоким туристическим потенциалом, благодаря новым культурно-образовательным учреждениям город будет носить статус не только военно-промышленного города, но и культурной и эколого-ориентированной столицей Республики. Это позволит повысить инвестиционную привлекательность Ижевска. Дом природы станет точкой притяжения горожан, в особенности студентов и школьников, туристов. Облагороженная территория сформирует выразительную панораму северной Набережной.

Участок расположен на северной набережной ижевского пруда рядом с Дворцом детского «юношеского» творчества. Площадь составляет 50 300 м2.

Участок граничит:

  • на севере ул. Кирова
  • на западе жилой застройкой средней этажности 5-9 этажей
  • на востоке сквером у Дворца детского «юношеского» творчества
  • на юге Набережной им. Зодчего С.Е. Дудина

 Форма участка обусловлена существующей градостроительной ситуацией. Рассматриваемый участок располагается по двум сторонамр. По дборенки, которая делит его на две части. Учитывался отступ от края основной проезжей части и линии берега реки. Проектом предлагается максимально возможное сохранение существующего рельефа и берегов реки. Главный вход в восточный блок осуществляется с востока через сквер у Дворца пионеров, второстепенные входы – с юга с Набережной и запада со стороны реки, вход в западный блок осуществляется с запада со стороны реки. Въезд на участок, технические подъезды и парковки запроектирован со стороны ул. Кирова. Зонирование территории определяется, учитывая функциональное расположение блоков здания. Так, на проектируемой территории выделяются следующие зоны:

  1. Прогулочная зона вдоль реки, перетекающая в набережную пруда;
  2. Детские площадки для игр с водой у реки;
  3. Автомобильная эко-парковка с возможностью парковки автобусов;
  4. Зона проведения мероприятий с амфитеатром;
  5. Сухой фонтан;
  6. Рекреационная зона на озелененной кровле здания.
  7. Хозяйственные зоны – площадки разгрузки для кухни кафе, музея и библиотеки, гербария и оранжереи, вывоз отходов.

Вдоль реки проложены пешеходные дорожки, соединяющие ул. Кирова и набережную, а также извилистый мост для более медленных прогулок и любования природой. Склон отводится под благоустройство, здесь располагаются амфитеатр и сухой фонтан. На эксплуатируемой кровле возможно проведение занятий на открытом воздухе, проведение культурных мероприятий и высадка растений обучающимися данного центра. Все зоны участка имеют непосредственную связь между собой, благодаря плавно извивающимся дорожкам. Так же, за счет этого обеспечивается равномерное распределение потоков по всему участку. Проектом предусматривается благоустройство территории, большое количество разнообразного озеленения, использование кровли зданий под зону рекреации. Со всех сторон здания предусмотрен пожарный проезд на расстоянии от 5 до 7 метров шириной 4,2м.

Дом природы тесно сотрудничает со школами и местами дополнительного образования, проводя тематические конкурсы, концерты для подрастающего поколения и с его участием. Регулярно для всех желающих проводятся экологические лекции, встречи, на которых объясняют основы рационального потребления, важность заботы об экологии. Проводятся мастер-классы в сотрудничестве с колледжами и институтами дизайна и архитектуры по повторному использованию вещей и создании из них произведений искусства, которые после можно выставить на территории центра. Проводятся встречи эко-волонтеров и организуются проекты по очистке от мусора природных пространств города. В летний период проводится летняя школа, для желающих обучится выращиванию растений и правильной заботе о них и основам экологических знаний. 

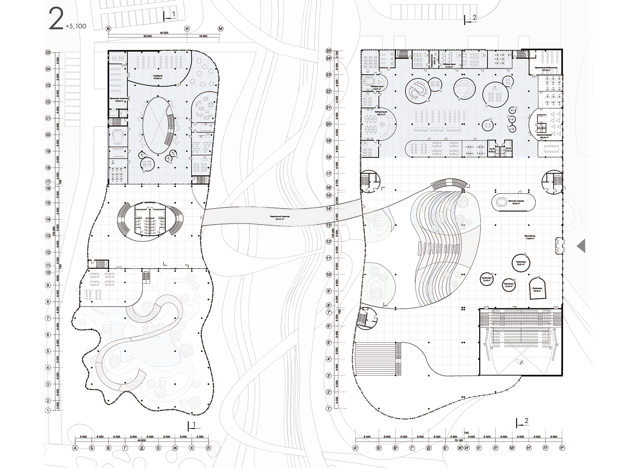
Здание представляет собой 2 блока, соединенных надземным переходом.Этажность здания составляет 2 наземных этажа: 1 этаж высотой 5,1м; 2 этаж – переменной высоты от 4,5 м. Габаритные размеры в плане: 130 200 мм – в осях 1’-25’, 48 000 мм – А-Л, 75 150 мм – в осях А’-Л’, 130 300 мм – в осях 25-1.  Главный вход в восточный блок расположен с востока на отметке +5,100, второстепенные входы – с южной и западной стороны на отметке +0,000, вход в западный блок осуществляется с востока с отметки +0,000. Блоки соединены надземным переходом через реку на отметке +5,100.

Главный вход в восточный блок расположен на втором этаже. Центральным формирующим пространством являются распределительные вестибюли первого и второго этажей, которые перетекают друг в друга через террасированный зимний сад, формируя общее озелененное ядро и обеспечивая зрительную просматриваемость всего объема.  На отметке +0,000 первого этажа располагаются музей климата, где представлены различные климатические зоны мира, информация как меняется климат Земли; интерактивная выставка пещеры, где представлены разные виды пещер со звуко-сопровождением, визуальными эффектами, а также кафе и открытый амфитеатр с видом на пруд. В северной части блока на отметке +5.100 расположена образовательная зона. Композиция отвечает тенденциям «открытой» планировки: по периметру стен располагаются стационарные учебные классы и лаборатории, в центре открытая библиотека, зона коворкинга и трансформируемые «капсулы» для работы в более мелких группах или индивидуально. В процессе разработки планировочных решений основной целью было создание комфортной для пребывания внутренней среды – это послужило причиной отказа от длинных коридоров и квадратных и прямоугольных помещений: внутренние углы скруглены, чередуются открытые и закрытые помещение, пространство максимально наполнено естественным светом. Рядом со входом в здание располагается блок офисов администрации. Также в блоке размещен многофункциональный зрительный зал, высотой в 2 этажа, пространство партера запроектировано с возможностью убрать сидения в специально отведенный отсек.

В западном блоке связь между зонами осуществляется через общий холл, с одной стороны от которого располагается двухуровневая оранжерея. В центре нее располагается аквариум для водной флоры, благодаря которому можно рассмотреть не только надводную часть растений, но и подводные корни, блок технических помещений с помещением загрузки, комнатой хранения, душевыми и раздевалками, лабораториями и изоляторами для подготовки растений. Воздушная прогулочная тропа, ведет на второй уровень - пространство для проведения мастер-классов, ярмарок, временных выставок растений. С другой стороны – двухэтажный атриум. Первый этаж: экологический музей с возможностью проведения мастер-классов и временных выставок, офисы администрации и волонтерского центра, с северной стороны – блок технических помещений, обслуживающих здание, и зона загрузки. На втором этаже расположен комплекс учебных помещений: учебные классы, комнаты для собраний и групповой работы, лаборатории и лаборантские, коворкинг и капсулы для индивидуальной работы, а также гербарий с коллекцией растений в комплексе с приемной-изолятором и лабораторией фото-сканирования. Надземный переход, выполняет функцию зимнего сада и позволяет комфортно перемещаться между блоками.

Технико-экономические показатели

Площадь участка – 50 300 м2;

Площадь застройки – 14 690 м2;

Общая площадь – 23 860 м2;

Этажность – 2;

Площадь этажей:

Восточный блок:

– площадь первого этажа – 5 200 м2;

– площадь второго этажа – 3 100 м2;

Западный блок:

– площадь первого этажа – 9 160 м2;

– площадь второго этажа – 6 400 м2;

Строительный объем (общий) – 143 100 м3;

Мощность - 1000 человек;

Пропускная способность 3000 человек;

Вместимость:

– зрительный зал – 430 мест;

– кафе – 150 мест;

– музей климата – 150 мест.

 

 

baje live پر اکاؤنٹ کیسے بنائیں؟ مکمل رجسٹریشن گائیڈ

نیا صارف ہیں؟ mate live پر رجسٹر ہو کر بونس حاصل کریں

azar live میں لاگ ان کرنے کا آسان طریقہ

رجسٹر کریں اور حاصل کریں خوش آمدید بونس – صرف xxl live پر

six اکاؤنٹ بنانے کا مرحلہ وار طریقہ

xxl میں سائن اپ کریں اور فوری بونس پائیں

bigo میں لاگ ان نہ ہو رہا؟ یہ حل آزمائیں

نئے صارفین کیلئے mate کا زبردست بونس آفر

yalla رجسٹریشن اور لاگ ان مکمل ہدایت نامہ

azar پر نیا اکاؤنٹ بنانے اور انعام حاصل کرنے کا طریقہ

livevideo کی دنیا میں پہلا قدم – رجسٹریشن اور بونس

tango پر اپنا اکاؤنٹ بنائیں اور پہلا بونس مفت میں حاصل کریں

baje: نیا صارف ہوں، کیا کرنا ہوگا؟

livecall پر لاگ ان میں مسئلہ؟ مکمل حل یہاں موجود ہے

omega اکاؤنٹ رجسٹریشن کی مکمل تفصیل

omegle نئے یوزرز کیلئے بونس حاصل کرنے کا طریقہ

xxx کی رجسٹریشن مکمل کریں اور انعامی رقم حاصل کریں

hd xxx پر رجسٹریشن اور بونس کلیم کرنے کا مکمل طریقہ

xxx hd پر رجسٹر کریں، لاگ ان کریں اور خوش آمدید انعام پائیں

xxx xxx کے ساتھ اپنی لائیو اسٹریمنگ کا آغاز کریں – ابھی رجسٹر کریں

boy xxx پر لاگ ان کیسے کریں؟ آسان ہدایات

hot xxx پر نیا اکاؤنٹ بنائیں اور 100 روپے بونس حاصل کریں

xxx hot پر کیسے رجسٹر ہوں؟ نیا یوزر گائیڈ

sex xxx پر خوش آمدید بونس کیسے حاصل کیا جائے؟

xxx sex لاگ ان کا آسان اور محفوظ طریقہ

boys xxx نیا صارف بونس – حاصل کریں بغیر کسی مشکل کے

desi xxx پر اکاؤنٹ بنانے کے 3 آسان مراحل

xxx boys میں پہلی بار لاگ ان کرنے پر کیا کریں؟

xxx girl نئے صارفین کیلئے رجسٹریشن اور انعامی آفرز

alyx xxx میں سائن اپ کریں اور فوری کیش بونس پائیں

xxx sexy پر اکاؤنٹ کیسے بنایا جاتا ہے؟ مکمل تفصیل

porn xxx صارفین کیلئے لاگ ان اور بونس کا مکمل حل

sexy xxx پر پہلا قدم – رجسٹریشن، لاگ ان اور انعام

xxx 2024 کی بونس آفر سے فائدہ کیسے اٹھایا جائے؟

xxx porn پر رجسٹر ہونے کے فوائد اور انعامات

xxx india پر رجسٹریشن کے بعد کیا کرنا ہے؟

video xxx اکاؤنٹ بنانے کے دوران عام غلطیاں

india xxx لاگ ان کے بعد بونس کیسے حاصل کریں؟

xxx vedio نئے یوزرز کیلئے خصوصی انعامی اسکیم

xxx movie پر اپنا سفر شروع کریں – رجسٹر اور جیتیں

xxx video اکاؤنٹ بنانے کے فوائد کیا ہیں؟

maya g xxx پر رجسٹر کرنے کے بعد کیا خاص ملتا ہے؟

xxx movies نئے صارف کیلئے رجسٹریشن کا مکمل طریقہ

xxx indian بونس حاصل کریں صرف سائن اپ کے ساتھ

indian xxx لاگ ان اور بونس: ہر قدم پر انعام

xxx videos پر سائن اپ کریں اور پہلے دن ہی انعام پائیں

xxx hd video پر رجسٹریشن کے بعد پہلا بونس کب ملتا ہے؟

xxx video hd پر مفت بونس حاصل کرنے کا موقع نہ گنوائیں

xxx pakistan رجسٹریشن اور بونس حاصل کرنے کا مکمل گائیڈ

pakistan xxx پر لاگ ان کریں اور اپنا بونس کلیم کریں

🎉 Chegou a sua chance de começar com tudo no 3ss bet! Novo no site? Cadastre-se agora e receba um bônus de boas-vindas de 100 dólares totalmente GRÁTIS! 💰 Aproveite esta oferta exclusiva para novos usuários e aumente suas chances de ganhar nos melhores jogos de cassino online. 🎰 Blackjack, roleta, caça-níqueis e muito mais esperam por você com saldo extra para jogar à vontade. Não perca essa oportunidade imperdível – o 3ss bet está pronto para te premiar desde o primeiro dia. Registre-se hoje e jogue como um verdadeiro VIP! 🚀 💥 Chegue com tudo no 317 bet! Novos usuários ganham US0 de bônus para jogar sem risco e se divertir nos melhores jogos de cassino. Cadastre-se agora e aproveite essa chance de começar sua jornada com vantagem. Jogue, ganhe e repita!

🚀 Seu futuro no mundo dos cassinos online começa com um super impulso: US0 grátis no kkk bet! Crie sua conta agora e comece a jogar com saldo bônus. Sinta a emoção e ganhe prêmios reais sem gastar do seu bolso!

🎰 Aposte com estilo e comece com saldo cheio! O 585 bet dá 100 dólares para novos jogadores explorarem o melhor do cassino online. Diversão garantida e possibilidade de lucro real desde o início. É só se registrar e jogar!

🧲 Você atraiu a sorte! No 569 bet, novos usuários recebem US0 de bônus automaticamente após o cadastro. Experimente slots, roletas e mais com esse crédito gratuito. Diversão com segurança e muita emoção esperam por você!

💎 O melhor bônus de boas-vindas está no vai bet: US0 grátis para você começar apostando com confiança. Crie sua conta e jogue com saldo extra nos maiores clássicos dos cassinos online. Ganhe experiência e prêmios!

🕹️ O aaa bet é a escolha certa para quem quer começar ganhando. Receba 100 dólares no ato do cadastro e jogue à vontade! Ideal para novos jogadores que querem conhecer a plataforma com saldo bônus. Comece com tudo!

🧨 A explosão de prêmios começa agora! Cadastre-se no 969 bet e receba US0 grátis para usar em centenas de jogos incríveis. Comece sua jornada de apostas com o pé direito — é rápido, seguro e lucrativo!

🏅 No z11 bet, novos jogadores são tratados como campeões. Ganhe US0 de bônus ao se registrar e explore os jogos mais emocionantes do mundo dos cassinos. Uma experiência VIP desde o primeiro clique.

🎊 Está esperando o momento certo? É agora! O kw bet te presenteia com US0 em bônus ao criar sua conta. Jogue nos slots mais populares, desafie a sorte na roleta ou aposte no blackjack — tudo com saldo extra!

🔥 Ganhe antes mesmo de começar! Com o bônus de US0 para novos usuários, o 26 bet permite que você jogue de verdade sem investir nada no início. Teste a plataforma, conheça os jogos e vença com inteligência.

💰 Seu primeiro depósito vale ouro no mj bet. Cadastre-se, ative sua conta e receba US0 em bônus de boas-vindas! Um impulso certeiro para quem quer jogar com mais chances e menos riscos. Entre agora mesmo!

🧧 Sorte dobrada no seu cadastro! O bet io oferece US0 grátis para você começar com tudo no cassino. Ideal para novos jogadores que querem experimentar e já sair ganhando. Diversão e prêmio vão de mãos dadas!

💸 Quer jogar agora mesmo com saldo bônus? No 01 bet, você ganha US0 só por se inscrever. Sem complicações, sem enrolação — apenas um presente para te dar as boas-vindas. Entre e jogue!

🎮 Novato em apostas online? O ut bet facilita seu início com 100 dólares em bônus para novos usuários. Explore o cassino online sem colocar dinheiro do seu bolso. É jogar, aprender e ganhar!

🏆 Comece como um campeão: US0 de bônus no 9y bet só para novos cadastros. Teste seus jogos favoritos com crédito extra e maximize seus ganhos. O cassino é online, mas os prêmios são reais!

🎟️ Quer diversão e prêmio? O bet 70 tem a combinação perfeita: US0 grátis ao criar sua conta. Jogue por diversão ou por lucro — você decide. A sorte está ao seu lado desde o início!

🧠 Use sua estratégia com vantagem! O f9 bet oferece US0 para novos usuários se aventurarem com crédito bônus. Slots, mesa ou roleta — a escolha é sua. Teste suas táticas com saldo extra!

🚨 Oferta imperdível: US0 de bônus grátis para novos jogadores no hw bet. Tudo que você precisa fazer é se registrar. Simples assim! Comece a jogar agora mesmo com muito mais chances.

💼 Quer apostar como um profissional? O kg bet te dá um bônus inicial de US0 para você jogar com confiança. Ganhe experiência e explore a plataforma sem custo no começo. Aproveite!

🎯 Mire nos prêmios com saldo bônus! Com US0 grátis no 5e bet, novos usuários têm tudo para começar em grande estilo. Jogue agora e aproveite a melhor promoção de boas-vindas do mercado.

💫 Seu início no bet br será memorável: são US0 de bônus grátis para experimentar os jogos mais emocionantes. Diversão sem risco, prêmios reais. Cadastre-se e comece sua sorte!

🎲 Aposta inteligente começa com bônus! Cadastre-se no hr bet e garanta US0 para começar sua jornada. Slots, mesa ou cartas — tudo está liberado para você explorar e vencer.

🌍 Onde quer que esteja, o br bet te acompanha com US0 de bônus para novos usuários. Diversão internacional com prêmios locais! Registre-se e ganhe de onde estiver.

🕵️‍♂️ Descubra o universo do cassino online com US0 grátis no 75 bet. Bônus exclusivo para novos jogadores. Comece com segurança, explore com liberdade e ganhe com sorte!

🌟 Um bônus que vale ouro! No 03 bet, novos usuários recebem US0 só por criar uma conta. Uma chance única de experimentar tudo que o cassino oferece sem gastar nada no início.

⚡ Acelere sua jornada com US0 de bônus grátis no 6z bet! Mais jogos, mais chances, mais diversão. Tudo isso só por se cadastrar. Pronto para girar e ganhar?

💹 Invista no seu entretenimento com saldo bônus! No 6r bet, o primeiro passo vale US0. Cadastre-se e comece sua experiência de apostas com muito mais poder!

🪙 O cassino que paga para você jogar! No v6 bet, novos usuários ganham US0 para testar os jogos e faturar. Experimente grátis e sinta a emoção real!

🛎️ Recepção digna de cassino de luxo: US0 de boas-vindas no seu cadastro no 78 bet! Comece com o pé direito e jogue com tudo desde a primeira rodada!

🎇 A noite promete prêmios! Com US0 grátis ao criar sua conta no bt bet, você pode jogar à vontade, se divertir e ainda sair com ganhos reais. A sorte está lançada!

🎁 Novo no 80 bet? Você já ganha presente: 100 dólares em bônus para começar bem. Use como quiser em jogos incríveis e torne-se um mestre das apostas.

📈 Comece sua jornada no topo com US0 de bônus inicial no 8g bet. Um impulso perfeito para testar a plataforma, aprender e vencer sem riscos!

🔒 Segurança, bônus e diversão: o 72 bet tem tudo para novos jogadores. Cadastre-se hoje e receba US0 grátis para jogar. Um início confiável para grandes vitórias!

🎲 O jogo começa com vantagem no xp bet! Ganhe US0 em bônus ao se cadastrar e explore os jogos mais empolgantes do mercado. Diversão e prêmios de verdade!

💡 Comece com inteligência! Receba US0 no f12 bet ao se cadastrar e use esse saldo para aprender, explorar e ganhar. Uma escolha esperta para novos jogadores!

🧨 Exploda em ganhos logo no cadastro! Com o bônus de US0 grátis, o p9 bet dá a você tudo que precisa para começar a vencer. Entre agora e aproveite ao máximo!

🥇 Comece como um vencedor! O 5 bet presenteia novos usuários com 100 dólares em bônus. Use esse crédito em centenas de jogos e descubra por que este é o cassino online preferido do Brasil!

🎁 No 4 bet, sua jornada começa com um presente incrível: US0 de bônus GRÁTIS ao se cadastrar! Aproveite essa promoção exclusiva para novos jogadores e mergulhe em uma experiência premium de cassino online. 💸 Jogos emocionantes, rodadas cheias de adrenalina e prêmios reais esperam por você. Registre-se agora e descubra como é fácil ganhar jogando com saldo extra!

💵 Quer jogar com vantagem desde o início? O bet 4 oferece US0 de bônus para todos os novos usuários! Isso mesmo: ao criar sua conta, você já começa com crédito para se divertir e faturar alto nos melhores jogos de cassino online. 🎲 Não perca tempo – essa oferta é por tempo limitado! Aproveite agora e transforme seu cadastro em lucro.

🔥 Novidade no pedaço! O r7 bet está oferecendo US0 grátis para novos jogadores! Faça seu cadastro e receba esse bônus especial sem complicação. Use o crédito em slots, roleta, poker e muito mais. Uma oportunidade de ouro para testar a plataforma e ganhar de verdade. Não deixe passar, registre-se já!

🎯 Quer começar apostando sem arriscar do seu bolso? Com o um bet, você ganha US0 de boas-vindas logo no primeiro cadastro. É simples, rápido e seguro. Jogue nos títulos mais populares do cassino e sinta a emoção de ganhar usando apenas o bônus! O seu momento de sorte começa aqui.

🤑 O 29 bet está dando um presente imperdível: US0 de bônus para novos usuários! É isso mesmo — só por se cadastrar, você já recebe saldo para jogar e se divertir como nunca. Explore os melhores jogos de cassino e aproveite cada rodada com mais chances de vitória. Não fique de fora!

🎉 A sorte bateu à sua porta! Cadastre-se no 5s bet e receba US0 grátis para começar sua aventura no mundo dos jogos de azar online. A promoção é válida somente para novos jogadores e pode ser usada em diversos jogos. Chegou sua vez de jogar como profissional e faturar alto!

💎 Quer viver a emoção dos grandes cassinos sem sair de casa? O ck bet te dá US0 de crédito só por criar uma conta. Jogue os melhores slots, mesas e roletas com dinheiro bônus e experimente o que o cassino online tem de melhor. Comece com vantagem — jogue agora!

⚡ Novato no pg bet? Você já começa ganhando: são 100 dólares de bônus só por se cadastrar! Descubra uma nova forma de jogar e aumentar suas chances sem gastar seu próprio dinheiro. Ideal para explorar os jogos e conquistar grandes prêmios. Vem pro pg bet!

🌟 No ea bet, todo novo usuário é VIP! Faça seu cadastro hoje mesmo e receba US0 em bônus para aproveitar como quiser. São centenas de jogos esperando por você com muito mais emoção, adrenalina e chances reais de lucro. Comece com força total!

🚀 Começar no 23 bet é fácil! Basta acessar o site, clicar em “Registrar” e preencher seus dados. Após a confirmação, faça login com seu e-mail e senha. E tem mais: novos usuários ganham um bônus de boas-vindas de US0! Não perca tempo — seu cassino favorito está a apenas alguns cliques.

🎉 Cadastre-se no bl bet em menos de 2 minutos! É rápido, seguro e você ainda recebe US0 grátis para começar. Após o registro, é só fazer login com suas credenciais e começar a jogar. Bônus, jogos emocionantes e prêmios reais esperam por você!

📝 Para criar sua conta no 3l bet, acesse o site oficial, clique em "Registrar" e insira suas informações. Depois de confirmar o cadastro, faça login normalmente. O melhor? Novos usuários recebem um bônus exclusivo de boas-vindas de até US0!

🧾 Não sabe como começar? É simples: registre-se no 2a bet com seus dados pessoais, confirme seu e-mail, e entre com seu login e senha. A recompensa? Um bônus gratuito de US0 para novos jogadores. Sua sorte começa aqui!

🛎️ O p7 bet facilita seu acesso ao mundo dos cassinos online. Cadastre-se em poucos passos, faça login com segurança e receba um bônus de US0 como boas-vindas. Ideal para quem quer apostar com vantagem desde o primeiro dia!

🎁 O primeiro passo para ganhar é se cadastrar! Acesse o 888 bet, clique em “Registrar”, complete seus dados e pronto. Faça login e receba US0 de bônus para começar sua jornada no cassino online com o pé direito!

✅ Registro simples, login rápido e bônus generoso de US0 — esse é o 707 bet! Basta criar sua conta, verificar seu e-mail e entrar com suas credenciais. Comece a jogar com saldo extra e aproveite os melhores jogos do mercado.

🤑 Comece agora mesmo no 361 bet! Crie sua conta com facilidade, acesse com seu login e senha e receba automaticamente US0 grátis para jogar. Rápido, intuitivo e cheio de vantagens para quem está começando!

🧠 Com apenas alguns cliques, você se cadastra no bet 29, faz login e já pode aproveitar um bônus de US0. Aproveite a chance de experimentar os melhores jogos de cassino com saldo grátis e total segurança!

🎲 Pronto para jogar? Cadastre-se no 700 bet com seus dados básicos, confirme a conta por e-mail e faça login. Logo na entrada, você recebe US0 de bônus! Simples, prático e lucrativo.

🔐 Para jogar no 161 bet, comece com um simples registro: clique em "Registrar", preencha os campos obrigatórios e confirme por e-mail. Após isso, faça login com seu usuário e senha e receba US0 em bônus de boas-vindas para curtir os jogos à vontade!

🧭 Não sabe por onde começar? Acesse o site do bet 777, clique em "Registrar", insira seus dados e ative sua conta. Em seguida, use login e senha para entrar e receber automaticamente um bônus de US0 exclusivo para novos jogadores!

✨ Criar uma conta no up bet é fácil e vale muito a pena! Você só precisa preencher seus dados, confirmar o cadastro e fazer login. Em minutos, estará jogando com US0 de bônus grátis para novos usuários. Aproveite!

💸 Dê seus primeiros passos no 58 bet com segurança: cadastre-se, ative a conta e entre com seu login. Simples assim. E o melhor: novos usuários ganham US0 de crédito bônus para começar com tudo nos jogos online!

🎮 O processo é simples: registro rápido, login eficiente e bônus garantido de US0. Entre no nn bet, complete o cadastro e comece a jogar com crédito extra em slots, roleta e muito mais. Não perca essa chance!

🛠️ Registro no 67 bet: passo 1, clique em “Registrar”; passo 2, preencha seus dados; passo 3, confirme seu e-mail. Feito isso, basta fazer login e pronto! Você ganha US0 de bônus para jogar onde e como quiser.

🎯 Quer saber como começar no 22 bet? É só se cadastrar, confirmar seu e-mail e fazer login. A recompensa? Um bônus de US0 grátis para explorar os jogos e se divertir com saldo extra desde o início!

🌟 No 9g bet, você não apenas se cadastra, você ganha! Após preencher o formulário de registro e acessar sua conta, você recebe US0 em bônus exclusivos para novos usuários. Um começo com vantagem total.

🕹️ Cadastro e login no 1x bet levam menos de 3 minutos — e te garantem US0 de bônus! Use esse crédito para testar jogos, conhecer a plataforma e começar a apostar de verdade com saldo grátis.

🧧 No bet 10, novos jogadores têm tratamento VIP. Cadastre-se, ative sua conta e faça login para desbloquear seu bônus de boas-vindas de US0. Tudo isso com total segurança e diversão garantida.

🚨 Não perca tempo! Vá ao site do 70 bet, clique em "Registrar", crie sua conta, faça login e receba US0 grátis para começar. Uma oferta imperdível para quem quer jogar com saldo bônus desde o início.

📲 Acesse o 2h bet pelo celular ou computador, clique em registrar, preencha o formulário, faça login e ganhe US0 para jogar. Tudo muito prático, rápido e seguro para novos jogadores.

🎁 Você se registra, faz login e o 9r bet te recompensa com um bônus inicial de US0. Use esse saldo extra para se divertir com os jogos mais populares do cassino online. Não dá pra perder!

🪙 Com o 16 bet, o registro é seu primeiro passo para ganhar. Após ativar a conta e fazer login, você já recebe US0 para jogar. É sua chance de testar, explorar e lucrar!

🧩 A inscrição no 81 bet é tão simples quanto clicar em "Registrar". Depois disso, é só logar e aproveitar seu bônus gratuito de US0. Perfeito para iniciantes que querem jogar com saldo extra.

🔥 O 7 bet oferece um bônus incrível de US0 para novos usuários! Basta criar sua conta, entrar com login e senha e começar a jogar. A sorte começa no registro!

🧑‍💻 Faça parte da comunidade 5u bet! Registre-se, acesse sua conta e receba US0 de boas-vindas para usar como quiser nos jogos do cassino. Tudo 100% online, seguro e fácil de acessar.

🤑 Cadastre-se e entre no 6k bet com um bônus de US0 totalmente grátis. Jogue nos slots, roletas e muito mais! Comece com o pé direito e explore todas as possibilidades da plataforma.

📥 Seu bônus de boas-vindas já está esperando por você! Basta se registrar no mg bet, fazer login e o crédito de US0 será ativado automaticamente para jogar. Fácil, rápido e vantajoso!

🌐 Com uma conta no b1 bet, você acessa jogos incríveis e ainda recebe um bônus exclusivo. Cadastre-se agora, faça login e garanta seus US0 grátis para começar com tudo!

🎯 Chegue chegando no 5h bet! Cadastre-se com seus dados reais, ative sua conta e faça login rapidamente. Assim que acessar, você recebe automaticamente US0 em bônus para começar a jogar sem gastar nada!

🔐 Segurança, agilidade e bônus: tudo no je bet começa com um simples cadastro. Após preencher o formulário e fazer login, você desbloqueia US0 de crédito grátis. Perfeito para se familiarizar com a plataforma e ganhar confiança!

💻 O registro no joya é 100% digital. Após preencher seus dados e ativar a conta por e-mail, entre com login e senha e aproveite US0 em bônus para jogos de cassino, esportes e muito mais!

✍️ O passo a passo é simples: vá até o site oficial do hopa, clique em "Registrar", insira suas informações, confirme e pronto! Faça login e receba US0 para jogar e testar a sorte com saldo bônus.

🚀 Novo no nomini? Crie sua conta em minutos, ative por e-mail e entre usando login e senha. Imediatamente, você receberá um bônus de boas-vindas de US0. Comece jogando sem investir!

🧨 O início perfeito existe: é no lsbet! Faça o cadastro, acesse sua conta e jogue com US0 de bônus grátis. Ideal para experimentar os jogos da casa com saldo extra e emoção desde o primeiro clique.

🧾 Cadastro fácil, acesso imediato e bônus garantido. No 1xbit, novos usuários recebem US0 grátis após criarem a conta e fazerem login. Acesse e aproveite os melhores jogos online com esse super incentivo!

🤑 Começar nunca foi tão lucrativo! Ao se cadastrar no platin e fazer login, você já garante US0 de bônus. Use esse crédito para jogar e concorrer a prêmios de verdade em slots e jogos de mesa.

💡 O icebet valoriza quem está chegando agora! Após criar sua conta e fazer login, o site libera automaticamente US0 de bônus. Assim, você pode explorar os jogos sem precisar investir de imediato.

🛎️ Comece com vantagem! Registre-se no rant, confirme sua conta e entre com seus dados. Você receberá US0 para usar nos seus jogos favoritos. Aproveite essa chance de jogar com saldo bônus desde o início.

🎁 Novos usuários têm tratamento especial no betus. Basta se cadastrar, entrar com seu login e senha e pronto: US0 em bônus de boas-vindas são adicionados à sua conta para começar com o pé direito!

📱 Com poucos cliques no seu celular ou computador, você cria sua conta no betgo, acessa com login e recebe um bônus de US0. Diversão, praticidade e vantagem para quem está começando!

🧠 Use sua inteligência e comece ganhando! Crie uma conta no 31bet, acesse com segurança e ganhe um bônus de US0 para jogar sem gastar nada do seu bolso. É a chance ideal de aprender e lucrar!

🥇 Quer jogar como um campeão? Cadastre-se no slingo, faça login e receba um bônus de boas-vindas de US0. Comece apostando com vantagem e aproveite os melhores jogos do mercado!

🔄 O flush oferece uma experiência completa: cadastro simples, login seguro e bônus instantâneo de US0 para quem está começando. É sua oportunidade de descobrir tudo com saldo extra!

🎲 Crie sua conta no ice36 e tenha acesso imediato a US0 em bônus. Faça login após o cadastro e comece a jogar nas slots, roletas e jogos ao vivo com crédito grátis. Teste a sorte agora!

🌟 Seja bem-vindo ao weiss! O processo de inscrição é rápido e prático. Após fazer login, você receberá um bônus exclusivo de US0 para começar sua jornada de apostas com saldo bônus.

📩 Registre-se no site do bet9, confirme o e-mail, faça login e libere US0 grátis para jogos. Uma excelente forma de explorar a plataforma e jogar com segurança desde o primeiro acesso!

🤑 Está esperando o quê? Cadastre-se no rabona e, assim que fizer login, receba automaticamente US0 em bônus. A melhor maneira de começar a jogar sem arriscar seu dinheiro.

🎉 Começar com vantagem é só no ibet. Faça seu cadastro, entre na plataforma com login e senha e ganhe US0 de boas-vindas. Saldo bônus para experimentar os melhores jogos do cassino!

🎰 No starda, o registro é simples e recompensa você! Após o login, o bônus de US0 é liberado automaticamente para novos usuários. Perfeito para quem quer experimentar o cassino com saldo grátis.

🖱️ Basta clicar em "Registrar", preencher seus dados e confirmar sua conta. Com o login feito, o dreams entrega US0 em bônus para você jogar. Fácil assim!

💳 Quer começar jogando sem investir? Registre-se no bongo, entre na sua conta e receba um bônus de US0. Jogue seus títulos favoritos com crédito bônus!

💼 Quer apostar com saldo extra? Cadastre-se no snatch, faça login e libere US0 em bônus de boas-vindas. Comece com uma vantagem real nos jogos!

⚡ Em poucos minutos você se registra, faz login e recebe US0 no 10bet. Um empurrão inicial incrível para novos apostadores explorarem tudo que o cassino tem a oferecer!

🔓 Desbloqueie seu bônus agora! Cadastre-se no daddy, entre com suas credenciais e ganhe automaticamente US0 para jogar à vontade nos melhores jogos online.

🛫 Sua jornada começa com um presente: US0 de bônus no metal! Cadastre-se, faça login e comece a apostar com saldo grátis. É diversão garantida com total segurança!

🎮 Quer jogar slots, blackjack e roleta com bônus? O zepbet oferece US0 grátis para novos jogadores. Cadastre-se, entre na conta e comece sua experiência premium!

🌈 Uma nova chance de ganhar está a um clique. Registre-se no drip, acesse sua conta e receba US0 para jogar. Tudo isso sem precisar fazer um depósito inicial!

🧨 Comece com tudo! Crie sua conta no gama, faça login e ganhe US0 em bônus grátis. A melhor forma de explorar o cassino online com vantagem total e prêmios reais!

💳 Quer começar jogando sem investir? Registre-se no drake, entre na sua conta e receba um bônus de US0. Jogue seus títulos favoritos com crédito bônus!

💼 Quer apostar com saldo extra? Cadastre-se no verde, faça login e libere US0 em bônus de boas-vindas. Comece com uma vantagem real nos jogos!

⚡ Em poucos minutos você se registra, faz login e recebe US0 no shazam. Um empurrão inicial incrível para novos apostadores explorarem tudo que o cassino tem a oferecer!

🔓 Desbloqueie seu bônus agora! Cadastre-se no wish, entre com suas credenciais e ganhe automaticamente US0 para jogar à vontade nos melhores jogos online.

🛫 Sua jornada começa com um presente: US0 de bônus no thor! Cadastre-se, faça login e comece a apostar com saldo grátis. É diversão garantida com total segurança!